May 2025 Progress Update

Schematic Design for New Brown Elementary Unveiled
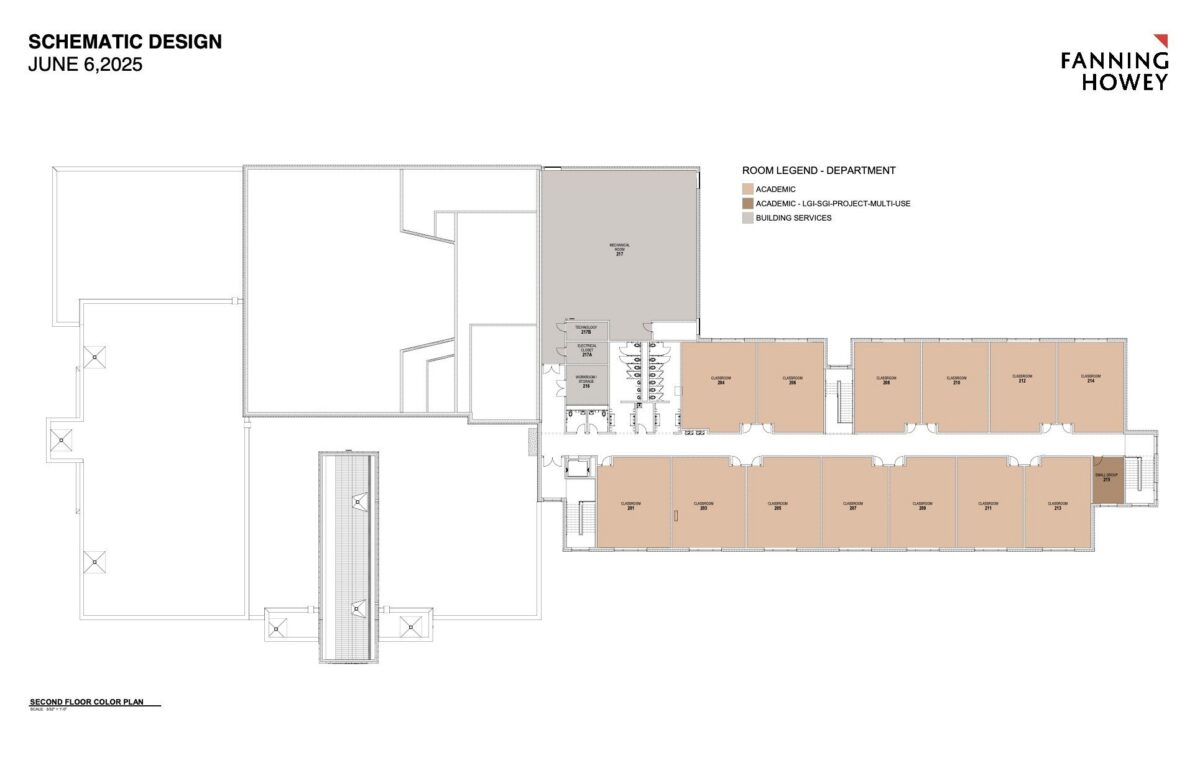
During the June Board of Education meeting, the Schematic design for the new Brown Elementary was presented as part of Phase 1 of our Master Facilities Plan (MFP). While this is an early-stage design and subject to further refinements, it provides an exciting glimpse into the future of elementary learning environments in Hilliard City Schools.
The proposed layout prioritizes flexible learning spaces, natural light, collaborative areas for students and staff, and enhanced safety and security features. This vision for Brown will also serve as the baseline design for the future rebuilds of Ridgewood Elementary and Beacon Elementary, ensuring equity, consistency, and high-quality learning environments across our district.
We are grateful to our community for supporting Phase 1 of the MFP and making these long-overdue improvements possible. As the design continues to evolve, we will keep families, staff, and community members informed and involved throughout the process.










